9 Little Sorrell Court, Tomball TX 77377
Presented by Jamestown Estate Homes
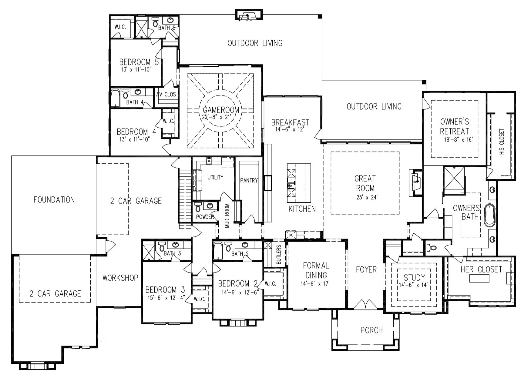
Jamestown Estate Homes presents a modern stone and stucco 5367 square foot home with thoughtful design touches throughout. This spacious one story is located on a one acre home-site. Upon opening the iron double doors, you’re immediately greeted with long site lines to the great room, kitchen and outdoor living space. High ceilings allow light to pour in the large windows throughout the home.
This design offers numerous entertainment options, with the butler’s pantry connected to the dining room, and a spacious game-room that opens via a wall of windows to a sprawling outdoor living room. The master suite is separated from the 4 secondary bedrooms, offering the owner’s privacy. All bedrooms have en suite baths and large walk in closets.
In the garage, 2 of the 4 bays have an extra tall door and interior, allowing for an over-sized vehicle. A closed in staircase offers easy attic access. Don’t miss the workshop area, perfect for storing tools, bikes, and more.
Bedrooms: 5
Bathrooms: 5.5
Square Footage: 5,367
Price: $1,449,000
For more information visit: http://willowcreekranchtx.com/estate-homes/9-little-sorrell
